VILLA CLEES –
ERWEITERUNG UND SANIERUNG
Auftraggeber:
Privat
Ort:
Mannheim, Deutschland
Zeit:
Jan 2001 – Dez 2001
Fläche:
300
m²
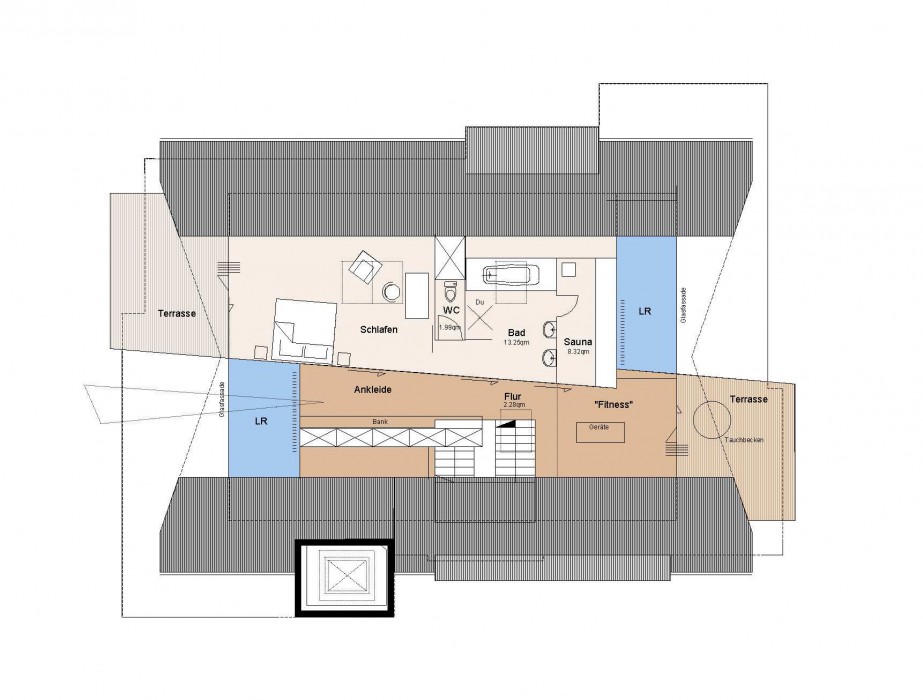
Neubau Dachgeschoß, Sanierung EG, 1. und 2.OG., Sanierung der Natursteinfassade
RS Architekten
Studio
Über uns
Philosophie
Leistungen
Projekte
ALLE
Hochbau
Messedesign
News
Kontakt
Partner
Impressum
Deutsch
English
Villa Clees